Imagine 65

Casă înșiruită modernă cu 4 camere | 1 garaj | Complex închis | Florești

ID: P252863 Floresti, Sesul de Sus 7
213.000€
Descriere
Arcana Imobiliare vă propune spre vânzare o casă înșiruită, construcție 2021, situată într-un complex rezidențial închis din Florești, zona Șesul de sus– o alegere ideală pentru familiile care caută confort, siguranță și liniște.

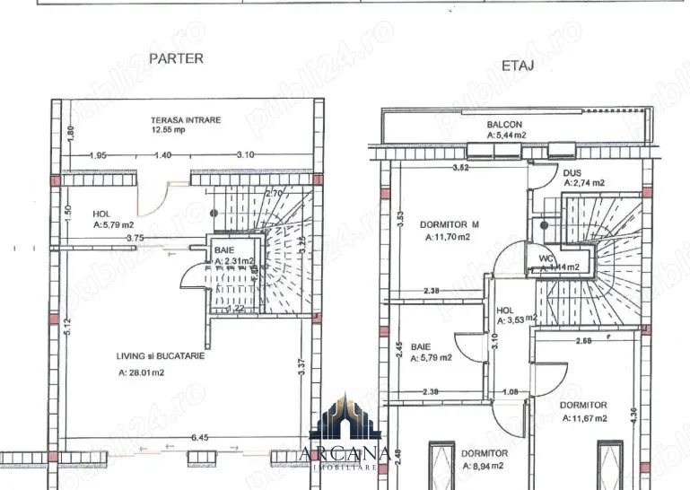
📐 Suprafețe:
Suprafață utilă: 82 mp
Amprentă la sol: 41 mp
Suprafață teren: 105 mp
Terasă: 13 mp
Grădină: 50 mp

🏠 Compartimentare:
Parter: Living generos cu bucătărie open-space, baie și dressing
Etaj: 3 dormitoare, unul cu baie proprie cu duș, hol, baie cu cadă și balcon de 5 mp

🚗 Beneficii incluse:
1 garaj subteran inclus în preț
Centrală termică proprie și încălzire în pardoseală
Aer condiționat
Mobilat și utilat, mobila este executată la comandă

🌳 Avantaje locație & complex:
Complex rezidențial închis, cu acces securizat
Parc privat pentru copii
Zonă liniștită, ferită de agitația orașului
Comunitate ideală pentru familii

✨ O locuință practică și primitoare, perfectă pentru cei care își doresc un stil de viață echilibrat, într-un mediu sigur.
📞 Pentru mai multe detalii sau programarea unei vizionări, nu ezitați să ne contactați!
Caracteristici
  • ID:P252863
  • Nr. camere:4
  • Nr. dormitoare:3
  • S. utila:82.00 mp
  • S. terase:63.00 mp
  • S. teren:104.00 mp
  • Nr. bucatarii:1
  • Nr. bai:2
  • Nr. balcoane:1
  • Nr. parcari:1
  • An constructie:2021
  • Structura rezistenta:Caramida
  • Regim inaltime:P+1
Specificatii
Curent
Apa
Canalizare
Gaz
Centrala proprie
Incalzire pardoseala
Vopsea lavabila
Faianta
Parchet
Gresie
Ferestre Termopan
Usa intrare Metal
Bucatarie Mobilata
Bucatarie Utilata
Complet mobilat
Gradina
Localizare
Arcana Imobiliare
Esti interesat de aceasta proprietate ?
Proprietati similare
De vanzare Imagine 2540
Casă înșiruită modernă cu 4 camere | Complex închis | Șesul de Sus | Florești
Floresti, Sesul de Sus 210.000€ 225.000€
4 camere 2 bai 83mp
De vanzare Imagine 2511
Casă înșiruită P+E+Terasă panoramică cu 4 camere | an 2025 | Zona Aqua Park
Floresti, Avram Iancu 198.000€ 206.000€
4 camere 2 bai 80mp
De vanzare Imagine 2483
Casă înșiruită modernă cu 4 camere | 2 garaje | Complex închis | Florești
Floresti, Terra 209.000€
4 camere 2 bai 84mp
De vanzare Imagine 2475
Casă înșiruită modernă cu 3 dormitoare | 2 garaje | Florești | zona Terra
Floresti, Terra 215.000€
4 camere 3 bai 82mp